Multifamily Property for Sale: 924 Greenbrier Dekalb

[section bg_color=”rgb(255,255,255)” dark=”true” padding=”0px” video_visibility=”visible”] [row padding=”10px 0px 0px 0px”] [col span=”9″ span__sm=”12″ divider=”0″ padding=”0px 0px 0px 0px” margin=”0px 0px 0px 0px”] [ux_text text_color=”rgb(0,0,0)”]

For Sale Multifamily

924 Greenbrier Rd | DeKalb, IL 60115

[/ux_text] [/col] [col span=”3″ span__sm=”12″ padding=”0px 0px 0px 0px” margin=”0px 0px 0px 0px”] [ux_text text_align=”right” text_align__sm=”left” text_color=”rgb(0,0,0)”]

$1,100,000

Sale Price

[/ux_text] [ux_text text_align=”left”] [/ux_text] [/col] [/row] [/section] [section padding=”0px” margin=”0px” border=”0px 0px 1px 0px” border_margin=”0px 0px 0px 0px”] [row col_bg_radius=”93″ padding=”0px 0px 0px 0px”] [col span=”8″ span__sm=”12″ divider=”0″ padding=”0px 0px 0px 0px” margin=”0px 0px 0px 0px”] [ux_gallery ids=”132831,132832,132833,132835,132836,132837,132825,132824,132827,132834,132828,132830,132845,132846″ style=”none” lightbox=”false” type=”slider” width=”full-width” col_spacing=”collapse” columns=”1″ slider_nav_style=”circle” image_height=”56.25%”] [row_inner padding=”20px 0px 0px 0px”] [col_inner span__sm=”12″] [ux_text text_color=”rgb(0,0,0)”]

Property Details

[/ux_text] [/col_inner] [/row_inner] [row_inner style=”collapse” v_align=”equal” h_align=”center”] [col_inner span=”3″ span__sm=”6″ border=”0px 0px 0px 0px”] [ux_text text_color=”rgb(0,0,0)”]

Price

[/ux_text] [/col_inner] [col_inner span=”3″ span__sm=”6″]

$1,100,000

[/col_inner] [col_inner span=”3″ span__sm=”6″] [ux_text text_color=”rgb(0,0,0)”]

Price / Unit

[/ux_text] [/col_inner] [col_inner span=”3″ span__sm=”6″]

$45,833

[/col_inner] [/row_inner] [row_inner style=”collapse” v_align=”equal” h_align=”center”] [col_inner span=”3″ span__sm=”6″] [ux_text text_color=”rgb(0,0,0)”]

Total SF

[/ux_text] [/col_inner] [col_inner span=”3″ span__sm=”6″]

9,240

[/col_inner] [col_inner span=”3″ span__sm=”6″] [ux_text text_color=”rgb(0,0,0)”]

Price / SF

[/ux_text] [/col_inner] [col_inner span=”3″ span__sm=”6″]

$119

[/col_inner] [/row_inner] [row_inner style=”collapse” v_align=”equal” h_align=”center”] [col_inner span=”3″ span__sm=”6″] [ux_text text_color=”rgb(0,0,0)”]

Units

[/ux_text] [/col_inner] [col_inner span=”3″ span__sm=”6″]

24

[/col_inner] [col_inner span=”3″ span__sm=”6″] [ux_text text_color=”rgb(0,0,0)”]

Occupancy

[/ux_text] [/col_inner] [col_inner span=”3″ span__sm=”6″]

100%

[/col_inner] [/row_inner] [row_inner style=”collapse” v_align=”equal” h_align=”center”] [col_inner span=”3″ span__sm=”6″] [ux_text text_color=”rgb(0,0,0)”]

Gross Income (Current)

[/ux_text] [/col_inner] [col_inner span=”3″ span__sm=”6″]

$132,600

[/col_inner] [col_inner span=”3″ span__sm=”6″] [ux_text text_color=”rgb(0,0,0)”]

Gross Income (Proforma)

[/ux_text] [/col_inner] [col_inner span=”3″ span__sm=”6″]

$161,700

[/col_inner] [/row_inner] [row_inner style=”collapse” v_align=”equal” h_align=”center”] [col_inner span=”3″ span__sm=”6″] [ux_text text_color=”rgb(0,0,0)”]

Cap Rate (Current)

[/ux_text] [/col_inner] [col_inner span=”3″ span__sm=”6″]

7.75%

[/col_inner] [col_inner span=”3″ span__sm=”6″] [ux_text text_color=”rgb(0,0,0)”]

Cap Rate (Proforma)

[/ux_text] [/col_inner] [col_inner span=”3″ span__sm=”6″]

9.06%

[/col_inner] [/row_inner] [row_inner padding=”20px 0px 0px 0px”] [col_inner span__sm=”12″] [ux_text font_size=”1.25″ line_height=”0.75″ text_color=”rgb(0,0,0)”]

Property Description

[/ux_text] [/col_inner] [/row_inner]

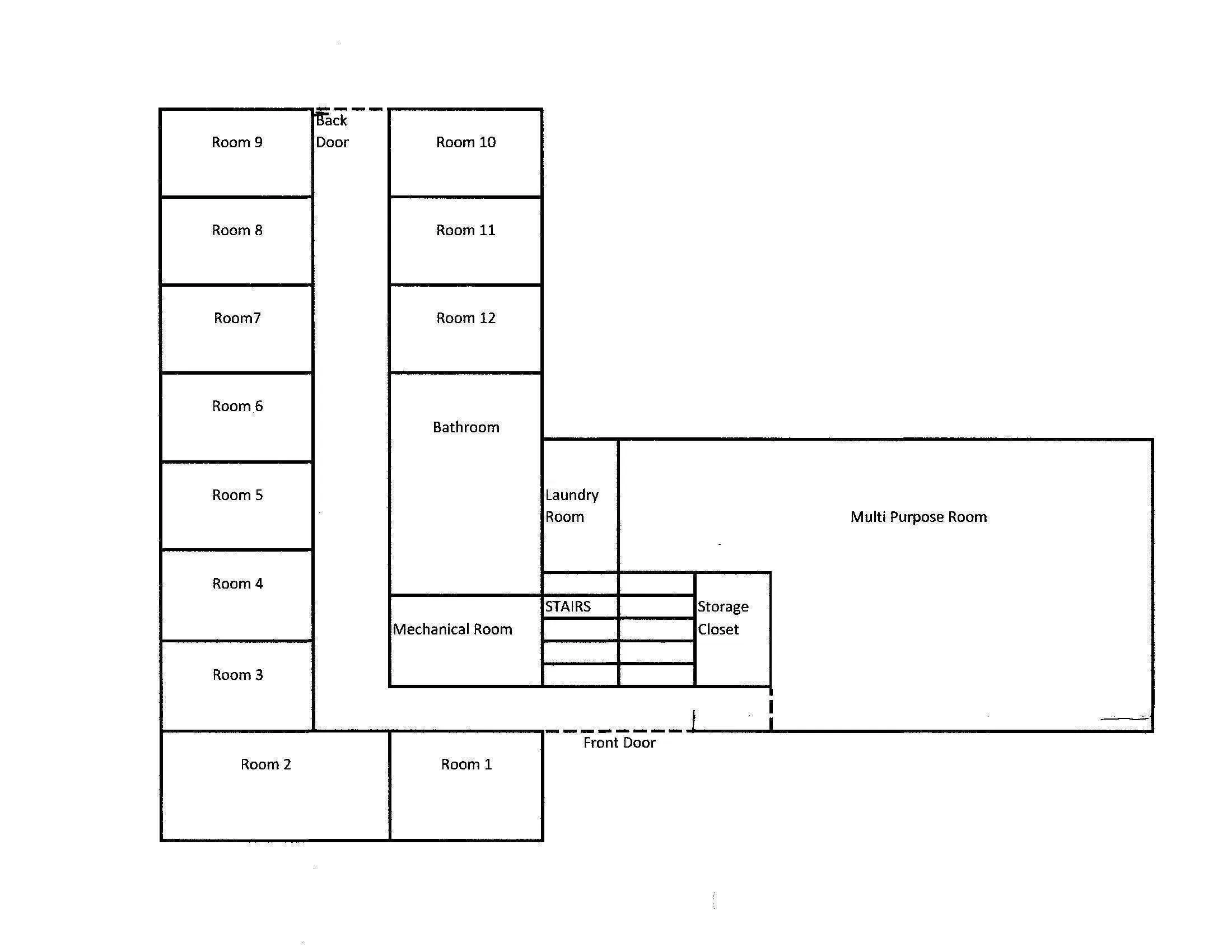
eXp Commercial is pleased to present to market 924 Greenbrier, a fully occupied 24-unit multifamily property in DeKalb, IL, just north of Northern Illinois University and approximately sixty-five miles west of Chicago. The building, which the City of DeKalb has designated as a rooming house, has 24 one-room units—twelve on each floor—along with a 3-stall, 3-shower community bathroom on each level and a half bathroom on the first floor. It includes communal living and eating areas, a commercial kitchen that meets code requirements, and a dining area.

Fully licensed through August 2024 with no outstanding building code violations, this property has significant upside potential after its recent transition from student housing to affordable, all-inclusive market-rate rentals. Constructed with brick and block flexicore, this two-story building has a gabled, shingled roof, replaced about ten years ago, and a newly installed, efficient gas-powered radiant floor heating system as of February 2024.

Fully equipped with sprinklers, it offers excellent sound insulation between units and floors, in addition to reduced insurance rates. The property as well as a professionally installed monitored fire alarm system. The parking lot is in good condition, having been recently patched, slurry coated, and re-striped, with numbered assigned parking spaces.

Ideally located just north of Northern Illinois University, it benefits from the rental demand of both students and local residents. DeKalb’s economic drivers, including Northwestern Medicine, General Electric, Monsanto, 3M, Nestlé, and Ferrara Candy Company, along with its status as a satellite city to Chicago, make it a solid investment.

[row_inner padding=”20px 0px 0px 0px”] [col_inner span__sm=”12″] [ux_text font_size=”1.25″ line_height=”0.75″ text_color=”rgb(0,0,0)”]

HIghlights

[/ux_text] [/col_inner] [/row_inner] [row_inner] [col_inner span=”6″ span__sm=”12″]
  • 24-Unit Multifamily

  • Fully Occupied

  • Below-Market Rents

[/col_inner] [col_inner span=”6″ span__sm=”12″]
  • Solid Flexicore Construction

  • New Boiler/Newer Roof

  • Resurfaced Parking Lot

[/col_inner] [/row_inner] [ux_text font_size=”1.25″ line_height=”0.75″ text_color=”rgb(0,0,0)”]

Map

[/ux_text] [map lat=”41.94433″ long=”-88.7703″ zoom=”15″ content_enable=”0″ content_width__sm=”100″ content_width__md=”40″ position_x__sm=”100″ position_y__sm=”100″ controls=”true”]

924 E Willow St Kankakee, IL 60901

[/map] [row_inner] [col_inner span__sm=”12″] [/col_inner] [/row_inner] [/col] [col span=”4″ span__sm=”12″ divider=”0″ padding=”0px 0px 0px 0px” margin=”0px 0px 0px 0px” align=”left” border=”0px 0px 0px 0px”] [button text=”Offering Memo” expand=”true” icon=”icon-lock” link=”https://buildout.com/connect/sharing/1340478-sale?file=3243128″ target=”_blank”] [row_inner] [col_inner span=”3″ span__sm=”12″ divider=”0″ align=”left”] [team_member img=”132488″ link=”https://creconsult.net/home-chicago-multifamily-brokerage/broker/broker-randolph-taylor/” image_height=”100%” image_width=”80″ image_radius=”100″] [/team_member] [/col_inner] [col_inner span=”9″ span__sm=”12″ divider=”0″] [ux_text font_size=”0.9″]
Multifamily Investment Sales Broker
National Multifamily Division
eXp Commercial – Chicago
P: 630.474.6441
E: rtaylor@creconsult.net
[/ux_text] [/col_inner] [/row_inner] [ux_text text_color=”rgb(0,0,0)”]

Share to Social

[/ux_text] [share style=”outline”] [row_inner padding=”20px 0px 0px 0px”] [col_inner span__sm=”12″] [ux_text font_size=”1.25″ line_height=”0.75″ text_color=”rgb(0,0,0)”]

Contact Broker

[/ux_text]

[bitform id=’7′]

[/col_inner] [/row_inner] [/col] [/row] [/section]

Discover

Latest Posts

Wheaton Multifamily Redevelopment – eXp Commercial Facilitates $1.475M Adaptive Reuse Success

Wheaton Multifamily Redevelopment – eXp Commercial Facilitates $1.475M Adaptive Reuse Success

eXp Commercial brokers $1.475M Wheaton multifamily redevelopment, showcasing suburban adaptive…

Chicago Multifamily Mortgage Rates – October 2025 Market Update | Positive Outlook for Investors

Chicago Multifamily Mortgage Rates – October 2025 Market Update | Positive Outlook for Investors

Explore October 2025 Chicago multifamily mortgage rates. See the latest…

North DuPage County Multifamily Market Q4 2025 | Stable Rents, Tight Vacancy & Limited Supply

North DuPage County Multifamily Market Q4 2025 | Stable Rents, Tight Vacancy & Limited Supply

The North DuPage County multifamily market Q4 2025 posts 5.2%…

Naperville Lisle Multifamily Market Q4 2025 | Strong Rents, Balanced Growth & Investor Optimism

Naperville Lisle Multifamily Market Q4 2025 | Strong Rents, Balanced Growth & Investor Optimism

The Naperville Lisle multifamily market Q4 2025 posts 5.6 %…